Sorry, you need to enable JavaScript to visit this website.
Skip to main content

Halfopen nieuwbouw met 3 slaapkamers op een perceel van 238m²

Komkommerstraat 9, Roeselare € 310.796
134 m² bew. opp.
3 slpk
238 m² opp. perceel

Meer info over deze Woning

Komkommerstraat 9, Roeselare

Deze nieuwe, halfopen woning is voorzien van alle hedendaagse comfort en is gelegen in een rustige wijk op enkele minuten van centrum Roeselare. (3km van de Grote Markt) en op slechts 2km van het station.

Oplevering is voorzien eerste helft 2026.

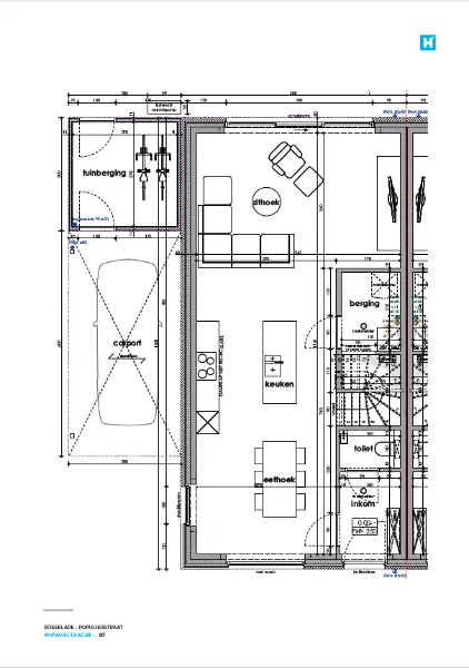
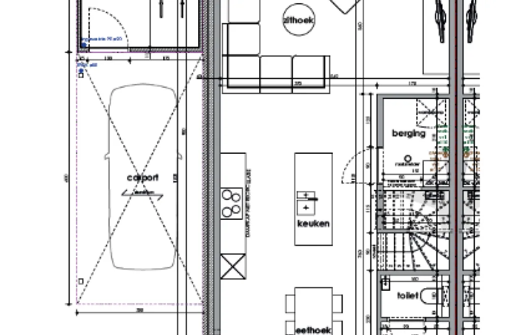
De lichtrijke woningen zijn voorzien van een inkomhal met toilet, lichtrijke leefruimte met open keuken, volledig geïnstalleerde keuken, 2 bergingen, 3 slaapkamers en een ruime badkamer met bad, douche en dubbel lavabomeubel. Het badkamermeubel en de keuken kunnen nog gekozen worden naar eigen smaak en wens. 

Mogelijkheid tot het plaatsen van een carport met tuinberging. 

De ligging is zeer rustig en heeft een uitstekende verbinding met de E403 Kortrijk- Brugge. In de dichte omgeving vindt u verschillende winkels zoals een bakkerij, slagerij, grootwarenhuizen, frituur. Ook sportclubs, fietsroutes, voetbalplein en een atletiekpiste zijn in de omgeving te vinden.

Lot 08 (Halfopen bebouwing met mogelijkheid tot carport met tuinberging) TE KOOP

  • Grondoppervlakte 238 m²
  • Bewoonbare oppervlakte 134 m²
  • €  310 796,00 (prijs excl. btw en registratierechten)
  • E-peil 30


Wens je een afspraak om deze woningen te ontdekken? Contacteer ons op 051/201.400 

Hoeveel is je woning waard?

Je woning verkopen doe je het best met expertise. We staan je graag bij om het maximale uit de verkoop van je woning te halen.

Algemene info
Ruimtelijke ordening
Comfort
Omgeving
Oppervlakte en afmetingen

Algemene info

Prijs € 310.796
Bouwjaar 2025
Bouwtype Halfopen
Alg. Staat Nieuwe staat
Elektrische keuring Conform
E-Peil 30
Referentie Populierstraat LOT 8

Omgeving

Onderwijs - Secundair onderwijs Onze-Lieve-Vrouw van Vreugde [1,32 km]
Warenhuizen - Aldi 8800 Rumbeke [2,2 km]
Warenhuizen - Carrefour Carrefour market RUMBEKE [2,38 km]
Warenhuizen - Colruyt ROESELARE (AFHAALPUNT) [1,74 km]
Onderwijs - Basis en kleuter onderwijs Vrije Basisschool Arkorum 10 -- Spanjeschool-De Tassche [0,66 km]
Vervoer - Treinstations Roulers [1,87 km]
Gezondheid - Apotheker Apotheek Van de Vel [0,95 km]
Gezondheid - Tandarts Algemeen Tandarts [1,45 km]
Warenhuizen - Albert Heijn AH Roeselare [2,62 km]
Warenhuizen - Delhaize Steenstraat 5 8800 Roeselare [2,76 km]
Vervoer - Bus-en/of tramhalte Roeselare Populierstraat [0,19 km]

Comfort

Elektriciteit
Stadswater
Regenwater
Telefoon
Distributie
Riolering
Internet
Vloerverwarming
Septische put
Warmtepomp

Ruimtelijke ordening

Verkavelingsvergunning Ja
Stedenbouwkundige bestemming Woonuitbreidingsgebied
Bouwvergunning Bouw vergund
Recht van voorkoop Nee
Overstromingsgevoeligheid Niet overstromingsgevoelig
Overstromingskans gebouw (G-score) A
Overstromingskans perceel (P-score) A

Oppervlakte en afmetingen

Woonoppervlakte 134 m²
Grondoppervlakte 238 m²

Niet gevonden wat je zocht?

Blijf up to date van nieuwe panden in deze buurt.